Pracht – A

€ 484.000,-

Pracht Kerkdriel

Op een plekje onder de kerktoren van Kerkdriel midden in het bruisende centrum maar toch op een rustig stekkie, worden op het voormalig terrein van De Graauw, 7 patiowoningen en één gezinswoning gebouwd.

De woningen omarmen een groen intiem hofje dat eigendom wordt van de kopers van de woningen. De ruime patiowoningen, eigenlijk penthouses op de begane grond zijn in het bijzonder geschikt voor belangstellenden die graag gelijkvloers willen wonen. Alle woningen worden voorzien van een ruimte boven die uitermate geschikt is om er een werkkamer dan wel logeerruimte van te maken. In een paar minuten bent u bij alle voorzieningen en natuurlijk op het centraal gelegen Monseigneur Zwijsenplein.

Aan de Lage Hof in Kerkdriel worden een aantal bestaande bedrijfsgebouwen gesloopt en geherstructureerd naar een woonhofje met 7 patiowoningen en één eengezinswoning. Met zijn lage volume, ingesloten buitenruimte en levensloopgeschikte aanbouw is de patiowoning het perfecte woningtype op deze amorfe inbreidingslocatie. De patiowoningen sluiten aan 3 zijden de belendende achterkanten in en markeren een nieuwe openbare passage tussen de Lage Hof en de Teisterbandstraat. Deze passage wordt ingericht als een woonhof. Zes patiowoningen hebben hun voordeur aan het hof en er is veel aandacht besteed aan het creëren van een prettige groene verblijfsruimte. De twee woningen aan de Lage Hof fungeren als toegangspoort naar het woonhofje. De geschakelde hoofdvolumes van één laag met een kap worden aan de voorgevels per woning onderbroken door een dakkapel met een Vlaamse gevel. De dakkapellen zorgen voor ritmiek & parcelering van de hoofdmassa. Bovendien markeert elke dakkapel de individuele woning. In twee sorteringen van lichte baksteen wordt door het toepassen van verschillende verkenningen en metselwerkverbanden een rijk gevelbeeld gecreëerd. De lichte stenen gecombineerd met donkere dakpannen en kozijnen geven het project een moderne en eigentijdse uitstraling.

De Lage Hof is een doodlopend straatje richting de dijk en anderzijds om de hoek van het Mgr Zwijsenplein. Het recent vernieuwde plein met aansluitend het winkelcentrum, heeft op zijn beurt alle voorzieningen benodigd voor het dagelijks leven en vertier, zoals restaurantjes, cafeetjes en een ruim winkelaanbod inclusief supermarkten.

De woningen gelegen achter de Teisterbandstraat grenzend aan de Lage Hof, worden uitgevoerd in een aantal verschillende typen, van aan één geschakeld tot half vrijstaand, en op één na, met een slaap- en badkamer op de begane grond, dus leeftijdsbestendig.

De huidige voormalige showroom aan de Lage Hof wordt gesloopt en maakt plaats voor de 7 nieuw te bouwen patiowoningen en één eengezinswoning. Natuurlijk worden deze woningen gasloos en voorzien van energiebesparende maatregelen waaronder zonnepanelen en een warmtepomp conform de laatste eisen. Ook wordt er natuurlijk gedacht aan bereikbaarheid en parkeergelegenheid en zijn er parkeervoorzieningen zowel aan de Lage Hof als bij de entree vanaf de Teisterbandstraat. Verder zal het hofje een intiem en besloten karakter gaan krijgen door de aanleg van diverse bestratingen en groenvoorzieningen in het centrum van de bebouwing.

Twee woningen van het project bestaande uit acht woningen, hebben hun entree c.q. voorzijde aan de kant van de Lage Hof met de daarnaast gelegen parkeervoorzieningen. De overige zes woningen zijn gelegen aan het besloten hofje. De bergingen zijn separaat gelegen en onder andere bereikbaar vanaf de entree vanaf de Teisterbandstraat.

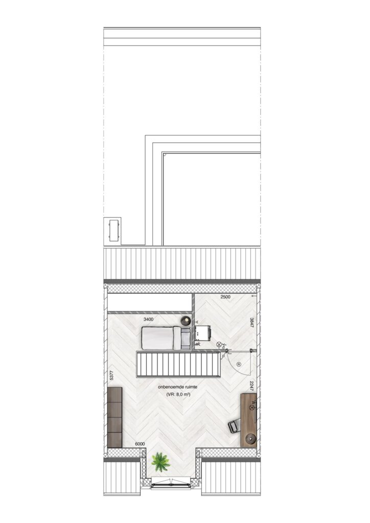
De woningen zijn toegankelijk via de aan de voorzijde gelegen entrees met zoals gebruikelijk de meterkast, garderoberuimte en een toilet. Ook is hier de trap naar de verdieping. Vanuit de entree kom je in de woonkamer ter grootte van 30 m2 met een glazen pui met openslaande deur naar de patio. Aansluitend ligt de half open keuken van 15 m2 met zicht op de straat c.q. binnenhofje.

Achter de woonkamer en patio, bereikbaar via de vestibule, ligt de slaapkamer van 15 m2 met aansluitend de badkamer met doucheruimte, wastafel en 2e toilet. Ook vanuit de slaapkamer is er middels de glazen pui en loopdeur, toegang tot de patio.

De verdieping bestaat uit een extra kamer, vrijelijk te bestemmen tot welk gebruik dan ook en een techniekruimte met warmtepomp en aansluitingen voor de was apparatuur. Desgewenst kan deze apparatuur natuurlijk ook beneden in het portaal tussen de woon- en slaapkamer geplaatst worden.

De woning op kavel 7 wijkt af omdat de slaap- en badkamer op de verdieping worden gebouwd. Hierdoor kan er een wat grotere patiotuin worden gerealiseerd. De bouwtekeningen geven een beter beeld.

De bouw zal natuurlijk voldoen aan de hedendaagse normering met onder andere warmtepompen en zonnepanelen voor de benodigde energieprestaties.

De uitgebreide brochure kunt u via deze site downloaden dan wel zullen wij u op verzoek doormailen inclusief de prijslijst.

Image Image Image Image Image Image Image Image Image Image Image Image

De omgeving

Tussen Maas en Waal in het zuiden van de provincie Gelderland ligt een bijzonder stukje Nederland: de Bommelerwaard. De rivier en de vele plassen oefenen grote aantrekkingskracht uit, o.a. op watersportliefhebbers. In het gebied zijn diverse jachthavens en strandbaden te vinden. Zo bieden de Zandmeren in Kerkdriel in de zomer volop gelegenheid om te zwemmen en zijn er diverse jachthavens waar men tevens kan genieten van een hapje en een drankje met uitzicht op het water. Naast de watersport zijn er vele mooie wandel- en fietsroutes te vinden in de Bommelerwaard. Voor de dagelijkse boodschappen kan men in de meeste kernen dichtbij huis terecht, in de grotere kernen (waaronder Zaltbommel en Kerkdriel) zijn daarnaast sportaccommodaties, culturele centra en horecavoorzieningen te vinden. Voor degene die centraal wil wonen en werken in Nederland met veel rust en ruimte in het schitterend rivierengebied is Kerkdriel een absolute aanrader.

Bel ons nu!