Aartshertogenlaan 85,
's-hertogenbosch

€ 425.000,- k.k.

Aartshertogenlaan 85,
's-hertogenbosch

Verkocht
Vraagprijs

€ 425.000,- k.k.

Woonoppervlakte

94 m²

Aantal kamers

4

Type

Perceeloppervlakte

0 m²

Bouwjaar

1951

Op een prachtige plek, nabij het bruisende centrum van ’s-Hertogenbosch, ligt aan de Aartshertogenlaan deze prachtige bovenwoning met maar liefst twee woonlagen, zolder en eigen berging. Met het centrum op loopafstand is de ligging meer dan ideaal. De woning heeft een knusse en charmante uitstaling en de gave en authentieke elementen zorgen voor aangenaam wooncomfort.

Entree
Via het stijlvolle hal is de woning te betreden. Het trappenhuis geeft toegang naar de verdieping waar de entree van het appartement aanwezig is.

Bovenwoning
De entree bevindt zich op de tweede verdieping van het complex. Een royale hal met toegang naar alle vertrekken tref je hier aan. Aan de voorzijde is de gezellige en knusse woonkamer gesitueerd. Een ruime hoekbank en fijn leeshoekje maken dit tot een aangenaam geheel. Grote raampartijen zorgen hier voor een wijds uitzicht, maar ook zeker voor lekker veel licht. Vanuit hier is de gezellige eetkamer te bereiken. Tussen de woonkamer en eetkamer is een knusse koffiehoek gecreëerd met extra kastruimte. De moderne keuken is aan de achterzijde gecentreerd. Een vaste kast, inbouwapparatuur en een wijds uitzicht aan de achterzijde maken dit tot een perfecte ruimte.

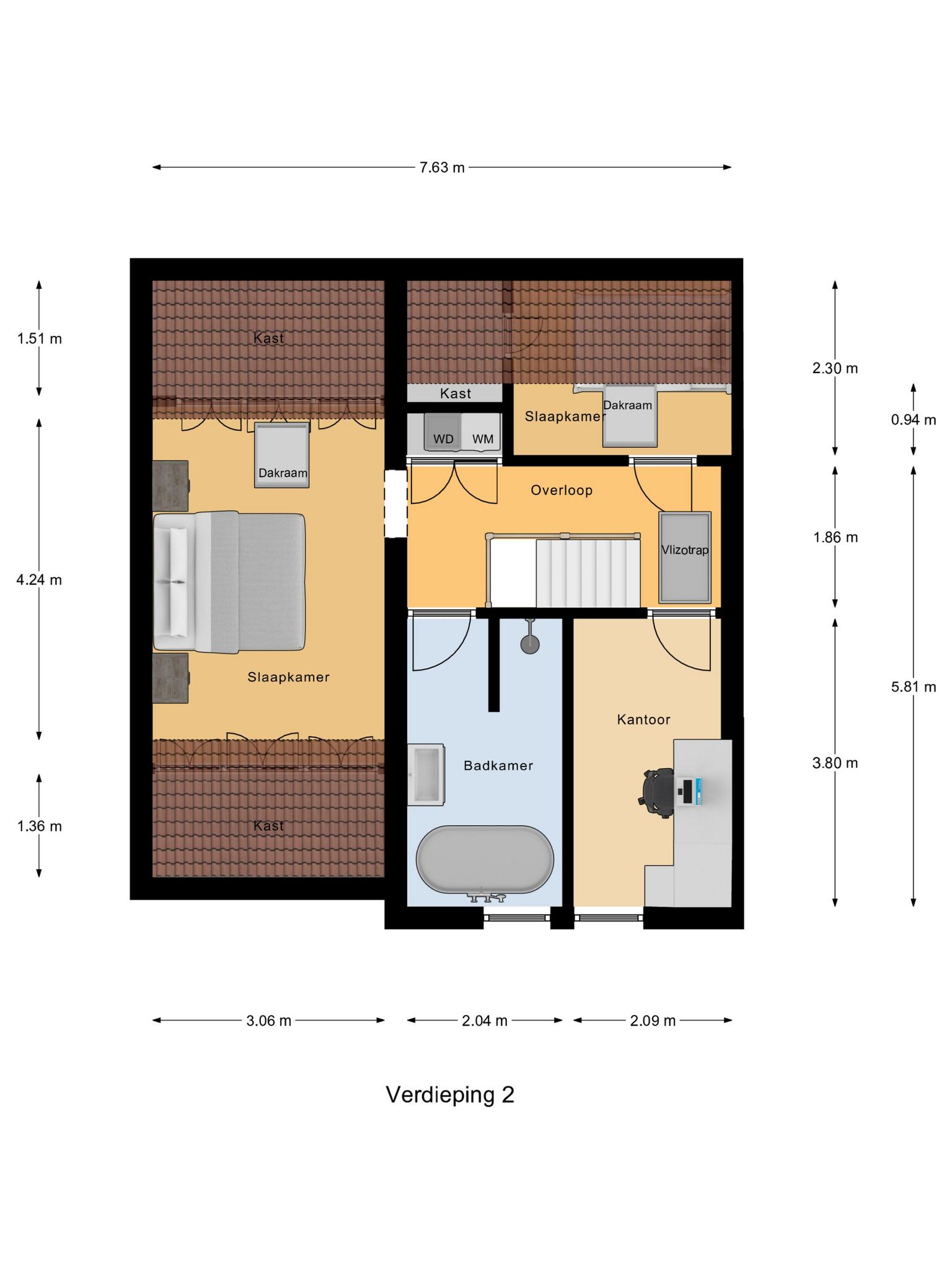
Via een vaste trap is de verdieping van deze fantastische woning te bereiken. De gave loftdeur hier geeft toegang naar de ruime masterbedroom met veel kastruimte onder de schuine kanten. Het grote dakraam zorgt voor lekker veel lichtinval. Verder zijn er nog twee slaapkamers aanwezig op deze verdieping (waarvan een is voorzien van een vaste kast) en de royale, nette badkamer. De badkamer heeft een mooie kleurstelling en is voorzien van een vrijstaand ligbad, wastafel met meubel en inloopdouche. Op de overloop is verder nog een mooie, geheel afsluitbare, plek gecreëerd voor het witgoed.

De vlizotrap, op de overloop, geeft toegang naar de handige bergzolder. Een fijne ruimte voor het opbergen van de spullen.

De woning beschikt ook nog over een handige stenen berging. Deze is te bereiken via de brandgang aan de achterzijde van het complex.

Omgeving
De woning is centraal gelegen in de geliefde wijk ‘De Muntel/De Vliert’, in de mooie stad ’s-Hertogenbosch. De Bossche binnenstad is op ongeveer tien minuten loopafstand. Voor de ontspanning is de IJzeren Vrouw (Prins Hendrikpark) op loopafstand en met een paar minuutjes fietsen kun je genieten van natuurgebied De Bossche Broek. Heerlijk wandelen kan hier zeker. Voor de sportiviteit is sportcomplex ‘het Sportiom’ zeer dichtbij. Kortom, het is hier heerlijk wonen met de belangrijke voorzieningen binnen handbereik!

Overdracht

Status
Beschikbaar
Koopprijs
€ 425.000,- k.k.

Bouwvorm

Bouwvorm
Bestaande bouw
Liggingen
In centrum, In woonwijk, Vrij uitzicht

Indeling

Perceel oppervlakte
0 m²
Woon oppervlakte
94 m²
Inhoud
323 m³
Aantal kamers
4
Aantal slaapkamers
3

Overdracht

Soorten warm water
Cv ketel

Buitenruimte

Tuintypes
Geen tuin
Kwaliteit
Totale oppervlakte

Parkeergelegenheid

Parkeer faciliteiten
Openbaar parkeren

Dak

Dak type
Zadeldak
Dak materialen
Pannen

Overig

Permanente bewoning
Ja
Waardering onderhoud binnen
Goed
Waardering onderhoud buiten
Goed
Huidig gebruik
Woonruimte
Huidige bestemming
Woonruimte
Voorzieningen
Mechanische ventilatie, Tv kabel, Dakraam
Bel ons nu!