Sfeervolle eindwoning met zonnig dakterras en patio in ’s-Hertogenbosch (Graafsebuurt zuid)
Aan de gezellige Esdoornstraat, op korte afstand van het centrum van ’s-Hertogenbosch, ligt deze karakteristieke eindwoning. De woning beschikt over drie slaapkamers, een zonnig dakterras en een sfeervolle patio met berging en achterom. Wilt u de woning graag komen bewonderen dan bent u uiteraard van harte welkom!
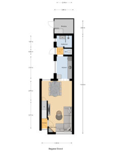
Indeling
Begane grond
Entree met hal en trapopgang. Lichte woonkamer met prettige indeling, praktische trapkast en doorloop naar de keuken in de aanbouw. De keuken in rechte opstelling is voorzien van diverse inbouwapparatuur. Op de begane grond bevinden zich tevens een toilet en badkamer welke beide recent vernieuwd zijn in moderne afwerking.
Eerste verdieping
Overloop met toegang tot twee royale slaapkamers. Aan de achterzijde bevindt zich een groot, zonnig dakterras waar het heerlijk vertoeven is.
Tweede verdieping (zolder)
Via een vaste trap bereikbare zolderverdieping met een derde slaapkamer is voorzien van groot dakraam, bergruimte achter de knieschotten en de opstelling van de cv-ketel. Verder zijn er witgoedaansluitingen aanwezig.
Buitenruimte
Bestaat uit een onderhoudsvriendelijke patio-tuin met achterom en praktische stenen berging met witgoedaansluitingen.
Omgeving
In de directe omgeving vind je diverse voorzieningen, zoals scholen, een gezondheidscentrum, een bushalte en een winkelcentrum met een gevarieerd aanbod aan winkels. Op loopafstand ligt bovendien het prachtige Prins Hendrikpark met recreatieplas ‘De IJzeren Vrouw’ – een geliefde plek om te wandelen, sporten of in de zomer heerlijk te ontspannen in een gezellige en levendige sfeer.
Bijzonderheden
Karaktervolle eindwoning uit 1938
Recent vernieuwde badkamer
Zonnig dakterras aan de achterzijde
Drie slaapkamers
Patio-tuin met achterom en berging
Rustige ligging nabij het centrum, winkels en openbaar vervoer


